Atelier

Typologie

Status

Fokus

Impressum/Datenschutz

040

Gästezimmer Pokkuna Bodde, Sri-Lanka

Direktauftrag, Studie

3 Gästezimmer + 1 Gemeinschaftsraum

Dodanduwa, Sri Lanka

2026

038

Bäume umarmen

Wettbewerb

2. Rundgang

Wohnen

Zürich-Altstetten

2026

036

Wohnhaus in Riehen

Direktauftrag

Wohnen

Riehen

2025 – 2026

035

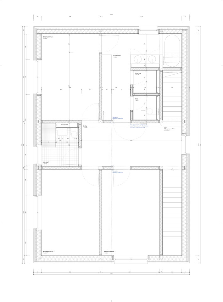
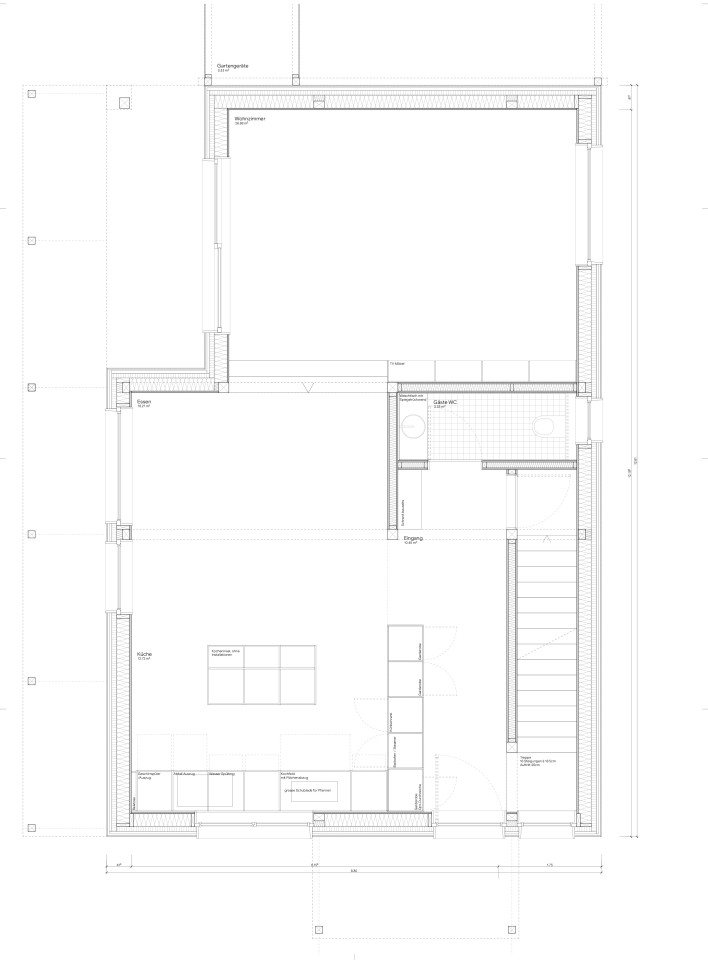
Haus in Stetten

Direktauftrag

Wohnen

Stetten

2025 – 2026

033

Haus in Rodersdorf

Direktauftrag

Wohnen

Rodersdorf

2025

032

Zukunft Wohngenossenschaften Basel

Wettbewerb

Wohnen

Basel

2025

031

Kindergarten Riehen

Wettbewerb, selektiv

2. Rundgang

Doppelkindergarten

Riehen

2025

030

Wohnen in Wettingen

Direktauftrag, Studie

Wohnungsbau

Wettingen

2025

029

Wohnraumverkleinerung Magden

Direktauftrag

Wohnraumverkleinerung in Bauernhaus unter Ortsbildschutz

Magden

2025 – 2027

028

M-R-S extended

Wettbewerb

2. Rundgang

Schulhauserweiterung

Baden

2025

026

ein Haus in Würenlingen

Direktauftrag

Wohnhaus

Würenlingen

2024 – 2026

025

Alterswohnungen in Reinach

Direktauftrag

Wohnungsbau

Reinach

2024

024

Wir Kinder aus Bullerbü

Wettbewerb

genossenschaftlicher Wohnungsbau

Basel

2024

022

Westbahnhofareal Solothurn

Wettbewerb

1. Ankauf, 2. Preis

Solothurn

2024

021

Doppelkindergarten Basel

Planerwahlverfahren

Kindergarten

Basel

2024

019

Sanierung + Erweiterung Schulanlage Moritzberg, Stäfa

Wettbewerb

5. Rang, 4. Preis

Schulhaus, Kindergarten, Erweiterung

Stäfa

2024

017

Umbau + Sanierung Wohnhaus, Arlesheim

Direktauftrag

Wohnhaus, Umbau + Sanierung

Arlesheim

2023 – 2024

016

Neues Wohnen im Brühl, Aesch

Wettbewerb, selektiv

Alterszentrum, Wohnen

Aesch

2023 – 2024

015

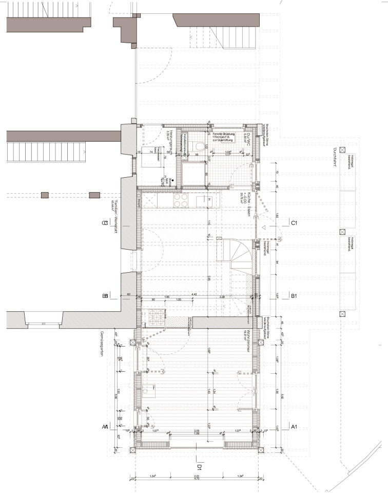
Cafe-Werkstatt in Bubendorf

Direktauftrag

Café, Umbau + Sanierung

Bubendorf

2023

009

Badeinbau

Direktauftrag

Umbau + Sanierung

Dodanduwa, Sri Lanka

2013 – 2023

006

Nachbarschaft Dürrenroth

Direktauftrag

Wohnungsbau

Dürrenroth

2023

001

Wohnüberbauung am Rain

Wettbewerb

6. Rang

genossenschaftlicher Wohnungsbau

Luzern

2023

  • A- 903

  • A- 801

  • A- 802

  • 009

  • A- 801

  • 019

  • 031

  • A- 906

  • A- 902

  • A- 902

  • 026

  • A- 703

  • A- 702

  • 017

  • 024

  • 031

  • 017

  • 036

  • A- 905

  • A- 905

  • A- 901

  • 001

  • 017

  • A- 802

  • A- 801

  • 022

  • A- 903

  • A- 802

  • 016

  • 015

  • A- 907

  • 022

  • 026

  • 031

  • 040

  • 015

  • 022

  • A- 906

  • 038

  • A- 901

  • 040

  • A- 907

  • 024

  • 015

  • 036

  • A- 701

  • 029

  • 016

  • 019

  • 017

  • 001

  • 016

  • 024

  • 026

  • A- 907

  • 038

  • 026

  • A- 904

  • 009

  • A- 908

  • A- 703

  • 015

  • 017

  • A- 901

  • A- 801

  • 022

  • 022

  • 031

  • A- 801

  • 032

  • 029

  • A- 901

  • 040

  • 026

  • 022

  • 024

  • 016

  • 036

  • A- 702

  • A- 907

  • 024

  • A- 903

  • A- 701

  • 028

  • 029

  • A- 802

  • 031

  • 032

  • A- 702

  • A- 803

  • A- 702

  • 031

  • 015

  • 029

  • 036

  • 016

  • 009

  • A- 802

  • A- 803

  • A- 801

  • 024

  • 024

  • 031

  • A- 701

  • A- 801

  • A- 703

  • 028

  • A- 906

  • 029

  • A- 904

  • 022

  • 028

  • A- 702

  • 006

  • A- 901

  • A- 803

  • 031

  • A- 904

  • A- 901

  • A- 801

  • A- 701

  • 029

  • A- 903

  • A- 801

  • 001

  • 028

  • 038

  • A- 802

  • A- 803

  • 026

  • 006

  • 017

  • A- 802

  • A- 908

  • 019

  • A- 904

  • 009

  • A- 902

  • 030

  • 026

  • 031

  • 026

  • A- 903

  • A- 701

  • A- 801

  • A- 901

  • 031

  • 017

  • 016

  • 038

  • A- 904

  • 026

  • 001

  • A- 701

  • A- 802

  • 017

  • 036

  • 016

  • A- 903

  • 038

  • A- 703

  • A- 703

  • 006

  • 035

  • 017

  • 025

  • A- 701

  • A- 905

  • A- 902

  • 031

  • A- 902

  • 038

  • 024

  • A- 803

  • A- 701

  • A- 901

  • 024

  • A- 701

  • 031

  • A- 701

  • 038

  • 035

  • A- 908

  • 026

  • A- 906

  • A- 903

  • 024

  • 028

  • 022

  • 009

  • A- 905

  • 017

  • 006

  • 026

  • 017

  • A- 902

  • 017

  • A- 903

  • 017

  • 015

  • 029

  • A- 803

  • 021

  • 036

  • 001

  • A- 902

  • A- 906

  • 031

  • A- 803

  • A- 907

  • 038

  • 024

  • 038

  • A- 908

  • A- 702

  • A- 801

  • 024

  • 029

  • 026

  • 026

  • A- 702

  • 001

  • 019

  • 040

  • 021

  • 024

  • 017

  • 032

  • A- 905

  • A- 903

  • A- 801

  • A- 701

  • 022

  • 035

  • A- 901

  • 019

  • A- 908

  • 031

  • 017

  • 036

  • 029

  • 028

  • A- 903

  • 029

  • 016

  • 017

  • 022

  • 015

  • 017

  • 019

  • 006

  • A- 906

  • 019

  • 009

  • 015

  • 019

  • A- 906

  • A- 701

  • 022

  • 026

  • 029

  • 029

  • 017

  • 017

  • A- 906

  • 035

  • 009

  • 035

  • 015

  • 028

  • A- 905

  • 001

  • A- 907

  • 038

  • 038

  • 016

  • 019

  • 028

  • 029

  • 038

  • 029

  • 040

  • 029

  • 038

  • 015

  • 028

  • 038

  • A- 901

  • 024

  • 038

  • 024

  • 029

  • 028

  • A- 701

  • A- 702

  • 019

  • A- 803

  • A- 801

  • 035

  • A- 901

  • A- 901

  • 021

  • A- 702

  • 015

  • A- 905

  • A- 703

  • 017

  • 029

  • A- 701

  • 022

  • 040

  • 026

  • 029

  • A- 905

  • A- 801

  • A- 908

  • 006

  • 017

  • 017

  • 017

  • 033

  • 015

  • A- 901

  • 029

  • A- 801

  • A- 701

  • A- 904

  • A- 801

  • A- 802

  • 009

  • 035

  • 028

  • A- 803

  • 022

  • 040

  • A- 701

  • 017

  • A- 908

  • 017

  • 024

  • A- 908

  • 035

  • 026

  • 006

  • 017

  • 036

  • A- 703

  • A- 903

  • A- 801

  • 021

  • 021

  • A- 907

  • A- 703

  • 024

  • 017

  • 040

  • 016

  • A- 902

  • A- 801

  • A- 908

  • 038

  • 026

  • A- 701

  • 024

  • A- 902

  • 029

  • 001

  • A- 801

  • A- 701

  • A- 702

  • 026

  • A- 904

  • A- 906

  • 017

  • 038

  • A- 906

  • 029

  • A- 904

  • A- 901

  • A- 905

  • A- 802

  • A- 902

  • 038

  • A- 906

  • A- 801

  • A- 701

  • 036

  • A- 802

  • A- 901

  • A- 907

  • A- 701

  • 031

  • A- 907

  • A- 701

  • 019

  • A- 901

  • 029

  • 015

  • 019

  • 029

  • A- 801

  • A- 703

  • A- 702

  • 028

  • 028

  • 017

  • A- 701

  • A- 801

  • A- 902

  • A- 801

  • 017

  • A- 803

  • A- 802

  • 028

  • 026

  • A- 903

  • 015

  • 022

  • 001

  • 009

  • 038

  • 038

  • 036

  • 035

  • A- 907

  • 038

  • 017

  • 022

  • 016

  • A- 908

  • A- 702

  • 019